DSA Logo

DIL SE ARCHITECT

Judge Your Architect

Get Your Plan

Who do We Help?

We cater to a diverse range of individuals and professionals.

Homeowners

Planning a new house or renovating an old one. Those who have a hard time approaching an architect or any technical person.

Architects

Designers who do the outsourcing of planning.

Students

Students who want plans for their academic purposes and study.

Interior designers

Designers who do the outsourcing of their floor plans.

Contractors

Who wants to build budget-friendly plans for their clients

New If Land Owners

Check with our plan if land is adequate for your dream home

About DilSeArchitect

About DilSeArchitect

At DilSeArchitect, we believe that a well-planned space leads to a better living experience. Whether you're building a new home, renovating, or just planning for the future, our floor design solutions ensure that your vision is turned into a practical and aesthetically pleasing reality.

With 100% online convenience, you can now get a customized floor plan created by an expert without stepping out of your home.

We help to choose your designer

With our floor plan

  • Hassle-free online process
  • Low planning charges
  • No physical visit required
  • Expert planning experience
  • Customize plans as per requirements
  • Best Solutions as per site conditions
  • Cross-check your designer
  • Maximum Vastu Shastra Compliance
We help to choose your designer

Designing a home shouldn’t break your bank

With us, you don’t have to pay high consulting charges

Designers charge hefty fees, making it expensive for homeowners to cross-verify designers.

That's why Dil Se Architect offers affordable, high-quality floor plans at a fraction of the market price!

Let's Make Your Dream Home a Reality.

Designing a home shouldn’t break your bank

Our Services

(At the Best Price!)

Building Plan - Floor Plan

Optimized space planning for maximum utility. Vastu-aligned layout to attract positive energy. Perfect room alignment & structure for a well-balanced home.

Interior Plan - Floor plan with interior layout

Smart furniture and space optimization with modern and functional design that enhances circulation.

What is a Floor Plan?

A floor plan is a top-view, scaled illustration representing a residential, commercial, or industrial space. The level of detail in a floor plan can range from an entire structure to just a single room. Whether it's an office, warehouse, factory, home, or event venue, a floor plan helps visualize how space will be utilized.

Typically, a floor plan features dimensions and may include furniture, appliances, fixtures, or any elements relevant to the intended function of the space.

Floor plans serve a variety of purposes, such as:

  • Arranging interiors and organizing room layouts
  • Assisting real estate professionals in marketing properties for sale or lease
  • Planning production areas and tracking essential machinery
  • Designing the flow of retail environments
  • Structuring storage or manufacturing areas in warehouses
  • Developing emergency evacuation maps
  • Managing office layouts for efficient use of space and resources.
What is a Floor Plan?

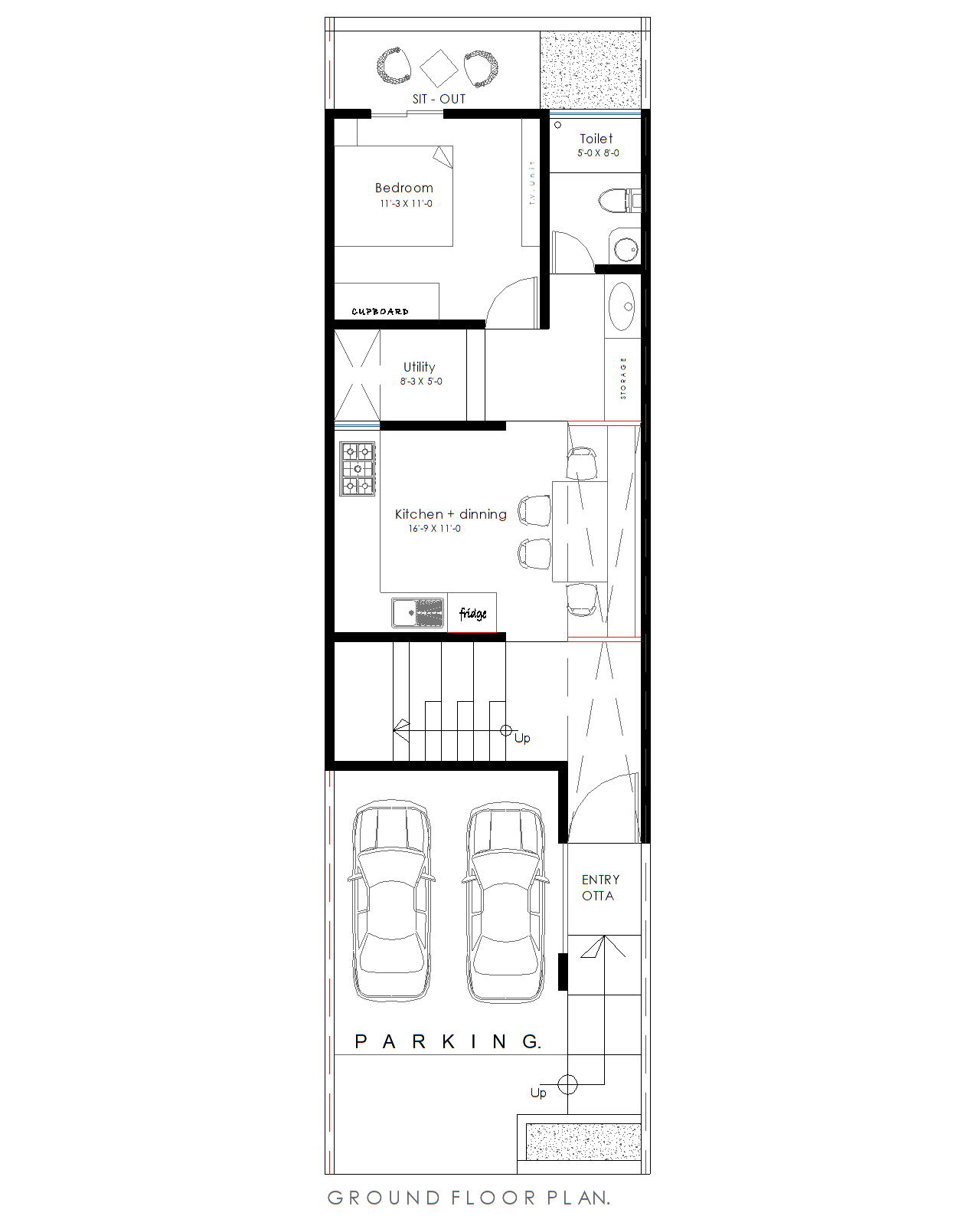
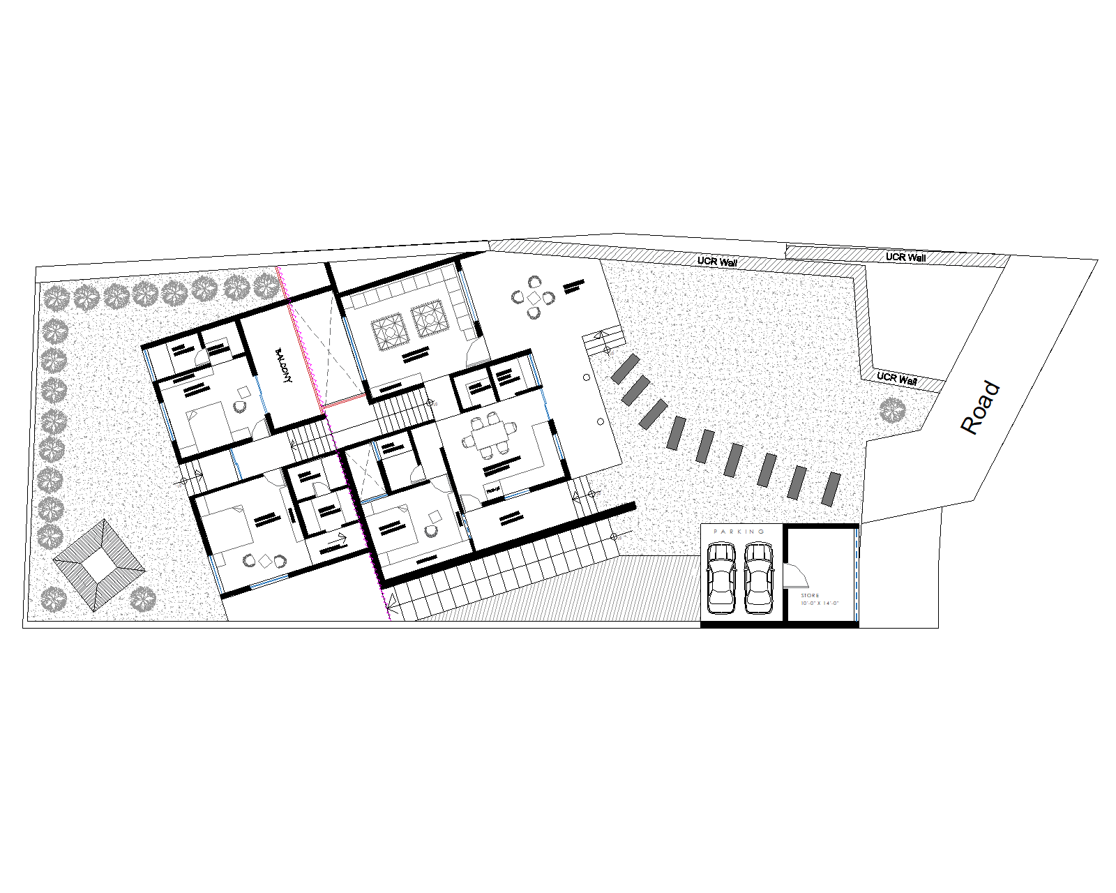
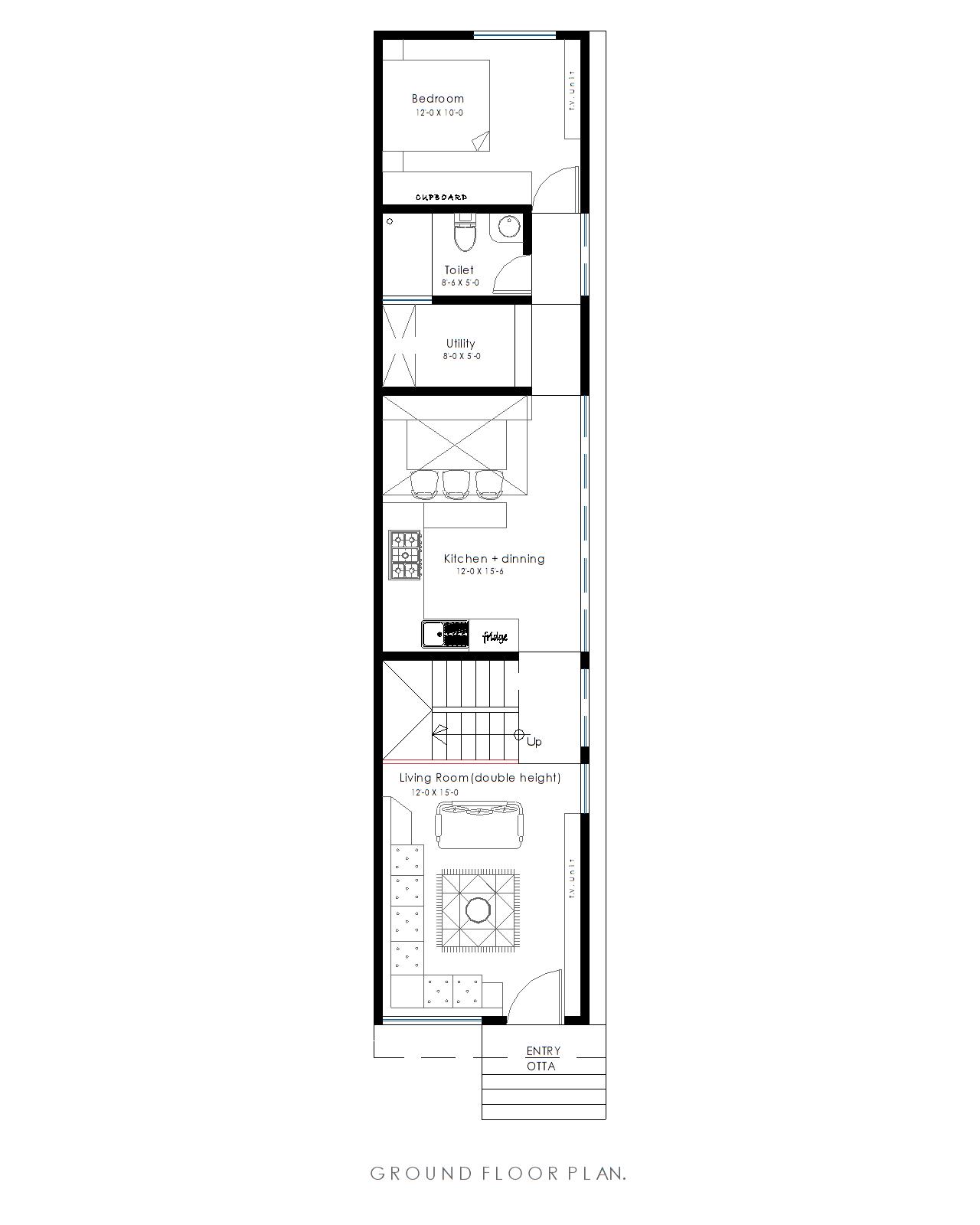
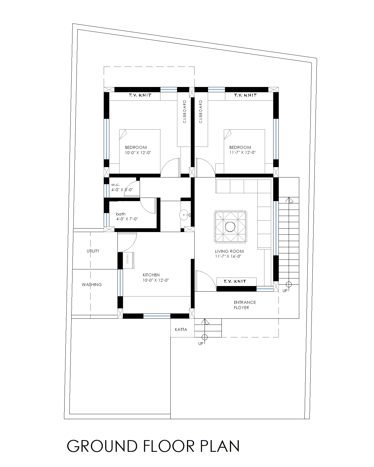
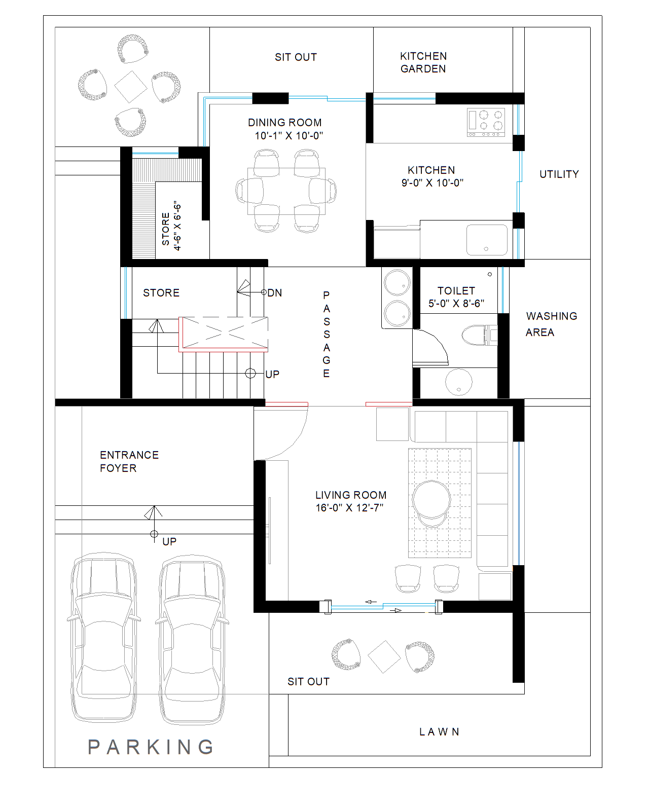
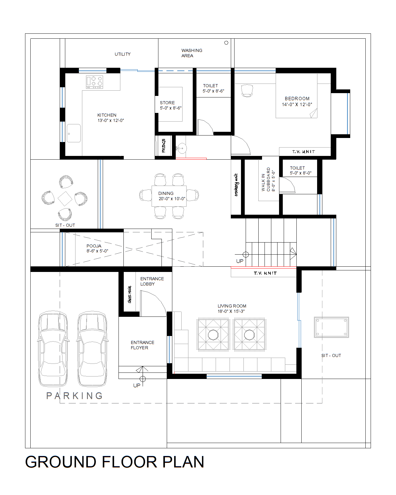
Featured Floor Plans

Explore a selection of our meticulously crafted floor plans, designed to inspire your next project.

Architectural Design - 1
Architectural Design - 2
Architectural Design - 3
Architectural Design - 4
Architectural Design - 5
Architectural Design - 6
Architectural Design - 7
Architectural Design - 8
Architectural Design - 9
Architectural Design - 10
Architectural Design - 11
Architectural Design - 12
Architectural Design - 13
Architectural Design - 14
Architectural Design - 15
Architectural Design - 16

Our Pricing & Plans

Professional Home Designs at Affordable Rates!

Basic Plan

  • Floor plan as per the requirement and the details given
  • Vastu-Shastra compliance
  • High-quality PDF Output
  • An architecturally sound plan with proper circulation and space planning

Premium Plan

  • Everything as a basic plan
  • Also include furniture placement for better understanding of space & circulation
  • Fast Delivery
Plot area (sqft) Basic Plan Premium Plan
Up to 1000 Sq. Ft. ₹999 ₹1499
Up to 1000 Sq. Ft. to 2000 Sq. Ft. ₹1499 ₹1999
Up to 2000 Sq. Ft. to 3000 Sq. Ft. ₹1999 ₹2499
Above 3000 Sq. Ft. to 4000 Sq. Ft. ₹2499 ₹2999

How to Get Your Floor Plan in 3 Easy Steps?

We have simplified the process so you can get your perfect floor plan without any hassle.

STEP 1

Fill Out the Form

  • Select your floor plan size and choose a plan (Basic/Premium)
  • Enter your requirements and contact details
STEP 2

Secure Payment

  • Complete the payment online to confirm your order
  • Receive instant confirmation email
STEP 3

Receive Design

  • Our architects design your plan based on requirements
  • Receive high-quality PDF floor plan via email
No Physical Visits
100% Online Process
Expert-Crafted Designs

Ready to Design Your Dream Home?

Professional architectural designs tailored to your needs. Get started today and transform your vision into reality!

Start Your Design Project

What Our Happy Clients Say

"Getting our floor plan was super easy! The website showed us what to do step by step. We didn’t get confused at all. We got the plan just like we wanted."

A

Akash & Sneha S.

Happy Customers

"I took the premium plan and it really helped. The website was easy to use, and the team gave great suggestions for my house. I’m very happy with how it turned out."

V

Vikram D.

Premium Plan User

"I needed a floor plan for my new home. I just followed the steps on the website, filled the form, and got my plan quickly. It was simple and smooth."

P

Priya K.

Happy Customer